





What Cheer Flower Farm
Fall 2023
Collabrators: Hong Wei, Crescent Feng
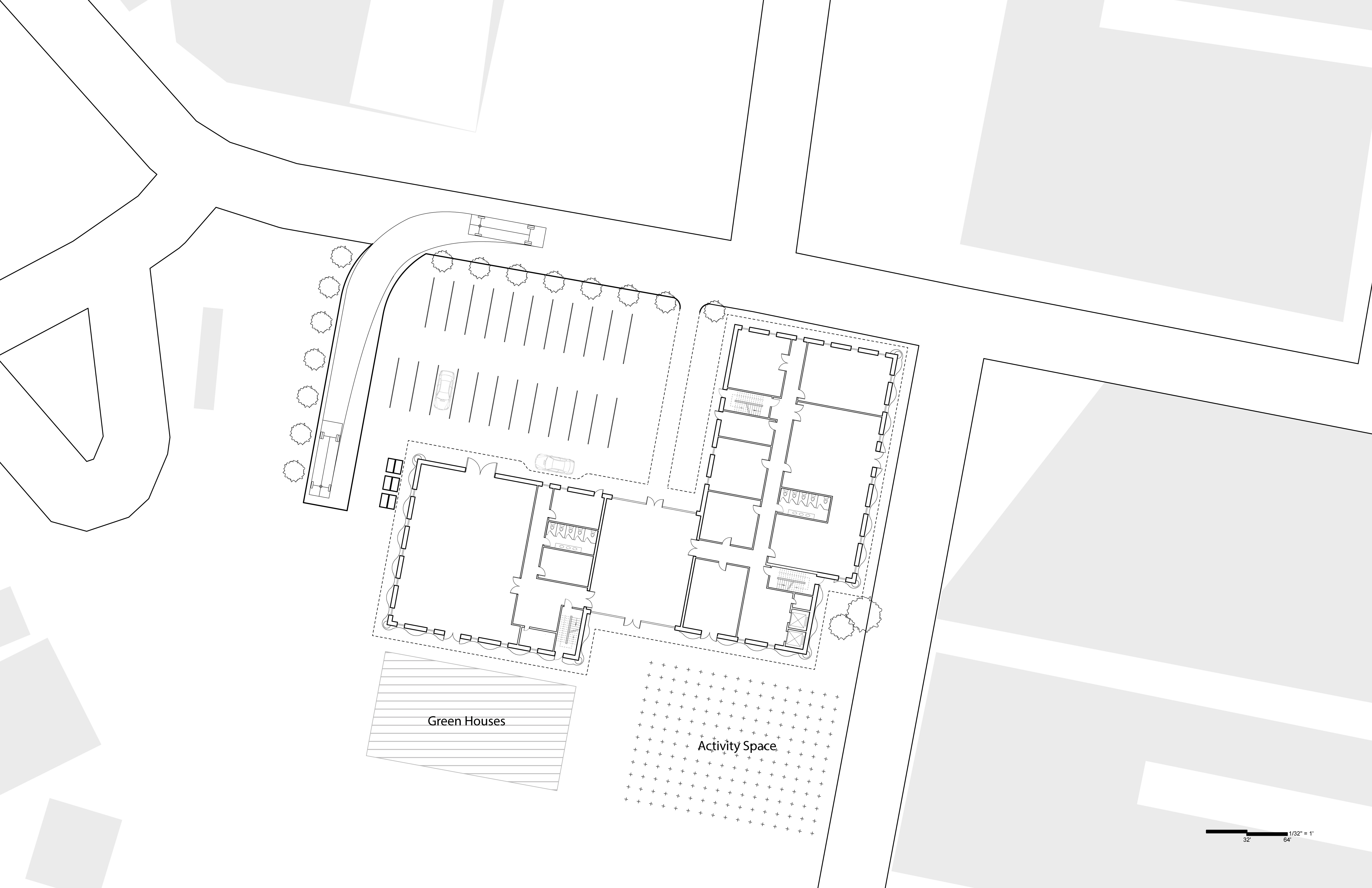
Project Location: 63 Magnolia Street, Olneyville Providence, RI
Project Description: New construction of 3-story building as expansion of What Cheer Flower Farm with normal ancillary spaces
Applicable Codes
a. City of Providence Zoning Ordinance. Chapter 2014-39 No. 513.
b. 2015 International Building Code
Building Description
a. Building Area: 40578 gross sf
b. Building Height: 49 ft
c. Fire alarm system
e. Major Use Categories
1. Business & Storage
2. Education
3. Office
Providence Official Zoning Ordinance
M-MU Mixed-Use Industrial District
Dimensions:
Max building ht: 75ft
Max wall width: 12 in
Max wall ht (> 5ft): 36 in
Setbacks:
Front: None Side: None Rear: None
Site Layout::
1: Where office or guest facilities are part of the development, the entry to office or guest facilities shall have direct access from street frontages and parking areas.
2: For campus developments, a distinct visual link shall be established among various buildings
3: The parking lot shall not be the dominant visual element of the site along the primary frontage.
Fall 2023
Project Location: 63 Magnolia Street, Olneyville Providence, RI
Project Description: New construction of 3-story building as expansion of What Cheer Flower Farm with normal ancillary spaces
Applicable Codes
a. City of Providence Zoning Ordinance. Chapter 2014-39 No. 513.
b. 2015 International Building Code
Building Description
a. Building Area: 40578 gross sf
b. Building Height: 49 ft
c. Fire alarm system
e. Major Use Categories
1. Business & Storage
2. Education
3. Office
Providence Official Zoning Ordinance
M-MU Mixed-Use Industrial District
Dimensions:
Max building ht: 75ft
Max wall width: 12 in
Max wall ht (> 5ft): 36 in
Setbacks:
Front: None Side: None Rear: None
Site Layout::
1: Where office or guest facilities are part of the development, the entry to office or guest facilities shall have direct access from street frontages and parking areas.
2: For campus developments, a distinct visual link shall be established among various buildings
3: The parking lot shall not be the dominant visual element of the site along the primary frontage.































